
DISEÑO ESTRUCTURAL DE EDIFICACIONES
Desarrollamos todo tipo de edificaciones desde la concepción de esta hasta su realización, para ello brindamos la asesoría en:
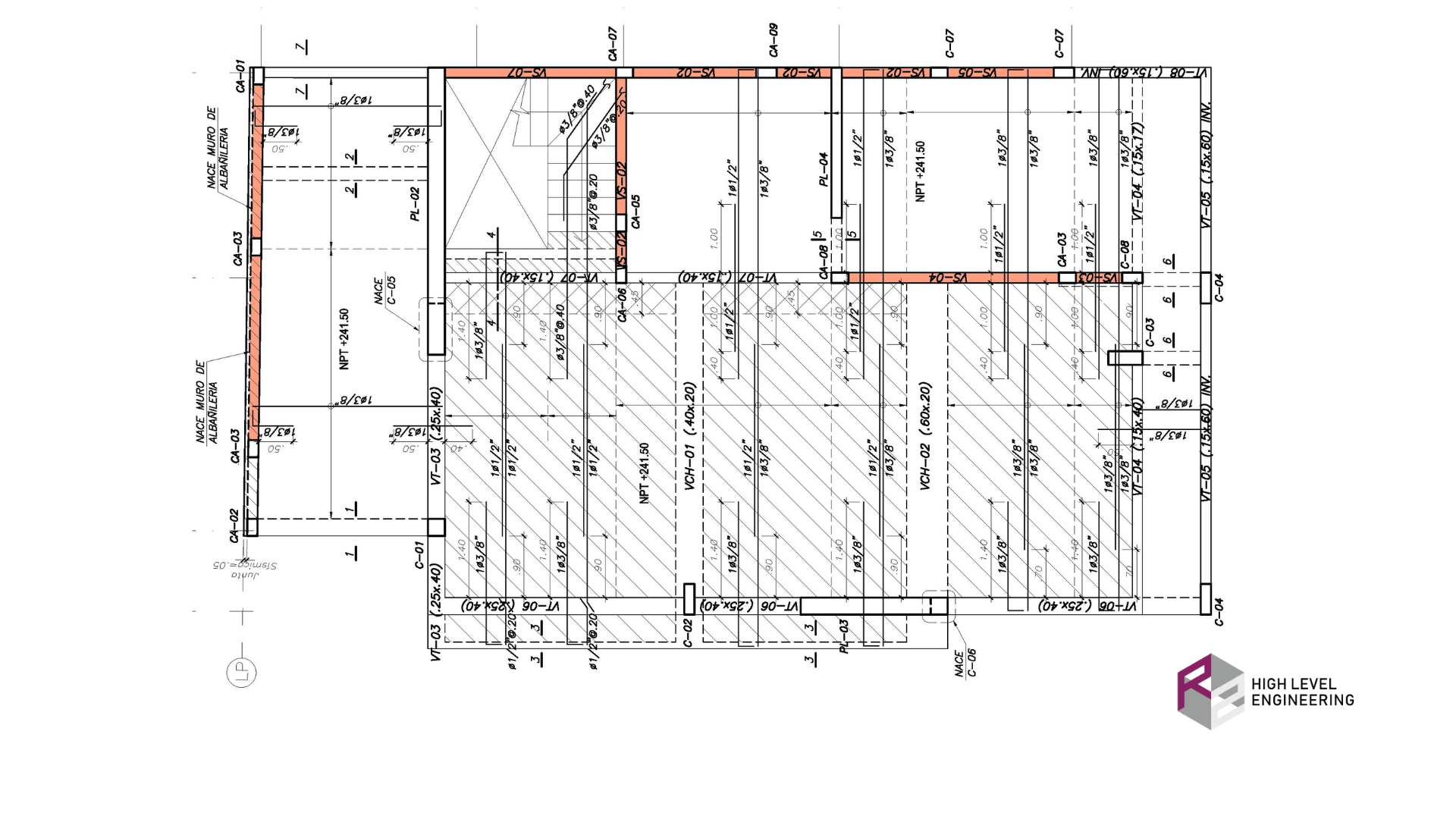
-El análisis y diseño estructural de edificaciones, casas, colegios, hospitales, centros comerciales, etc. Diseñamos en concreto armado, estructuras metálicas, albañilería, etc.
-Realizamos las coordinaciones necesarias con todos los especialistas que participan del proyecto como son: arquitectura, eléctricas y sanitarias.
-Realizamos visitas y solucionamos problemas que se presenten durante el proceso de construcción.
-Compatibilizamos el proyecto con todas sus especialidades para reducir los sobre costos durante la construcción.

ELABORACIÓN DE INFORMES SOBRE PROBLEMAS DE ESTRUCTURAS
Realizamos la elaboración de informes de cualquier tipo de problemas estructurales que puedan sufrir las estructuras existentes durante cualquier eventualidad natural u ocasionada por terceros.

EVALUACIÓN ESTRUCTURAL DE EDIFICIOS EXISTENTES
Desarrollamos la evaluación estructural de edificaciones que por algún motivo se vean sometidas a cargas diferentes a las cuales fueron consideradas durante su concepción estructural o debido a solicitaciones sísmicas.
-Evaluación estructural de edificios que cambian de uso.
-Evaluación de estructuras existentes que no cuentan con planos estructurales.
-Evaluación estructural de edificaciones que hayan soportado algún sismo.

REFORZAMIENTO DE ESTRUCTURAS EXISTENTES
Realizamos el reforzamiento de estructuras existentes que requieran mejorar capacidad o rigidez antes nuevas cargas de gravedad o ante alguna carga eventual de sismo.
-Reforzamos todo tipo de estructura existente que haya sido afectada por sismo o terremotos.
-Reforzamos edificaciones existentes que requieran cambiar de uso o una realizar una ampliación de pisos.

SUPERVISIÓN DE OBRAS DE INGENIERÍA CIVIL
Realizamos la supervisión de obras para garantizar una adecuado ejecución de la construcción y garantizar la calidad de la construcción, cumpliendo con todas las especificaciones técnicas requeridas.
-Realizamos visitas programadas de acuerdo a la programación de obra.
-Garantizamos que la ejecución de la obra esté de acuerdo a los planos estructurales.